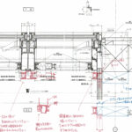
屋根の下地を薄く見せて軽快に見せる
木造平屋の現場で、瓦屋根を採用しています。
瓦屋根でもできるだけ、屋根が軽快に見えるように、
そしてサッシがより大きく見えるように納まりを工夫しています。
母屋と垂木の組み方を工夫して、屋根の下地のケラバ・破風(屋根下の木材の部分)が薄くなるようにしています。
通常であれば、この木材の部分は倍程度の厚みが出て来ます。
まだ壁材を張りきってから塗装の工程が待っています。サッシもガラスがこれから入ってきます。
現場での調整ごとはいろいろありますが、工程が進んでいくのを見れることは、
仕事をがんばろうと思うモチベーションになります!


