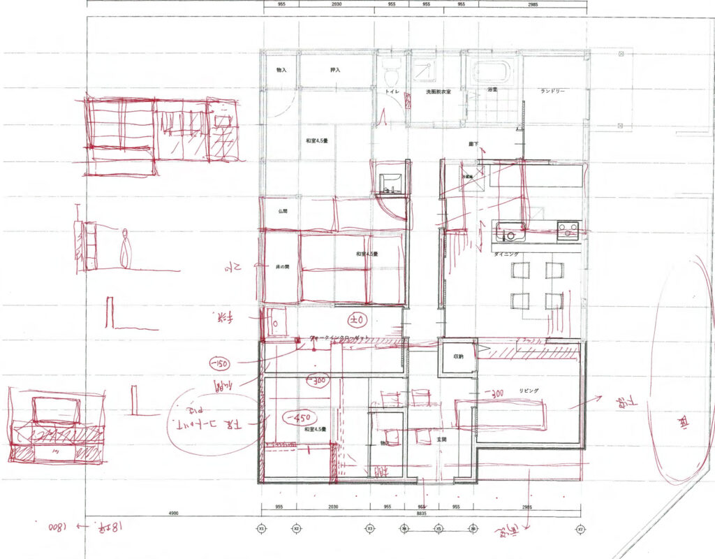
実現のために数多くの検討案をつくる
皆さんが目にするのは完成した建物ですが、
実はすべての建築は、設計士の手のひらから生まれる「落書き(ラフスケッチ)」からスタートします。
ただ線を引いているわけではありません。
「お客様の要望をどう叶えるか?」
「この大空間を支える木の骨組み(構造)はどう組むべきか?」
「光や風はどう抜けるか?」
コスト・デザイン・安全性の最適解を探るため、何枚も何枚も紙の上で思考をぶつけ合います。ここが最も頭に汗をかく、設計の心臓部です。


頭の中のアイデアが固まったら、お客様と完成イメージを寸分違わず共有するために、3Dモデルやパースへと進化させます。「こんなはずじゃなかった」をなくすための大切なステップです。




そして、現実のスケールへ!
何もない紙の上から始まったアイデアが、大工さんや職人さんの手によって、ついに現実のスケールとなって立ち上がった瞬間。
この圧巻の木造フレームを見上げる時が、設計士にとって最も鳥肌が立つ瞬間かもしれません🪵✨

